
1er prix du concours « Marienplatz » de Pasing
8 octobre 2015
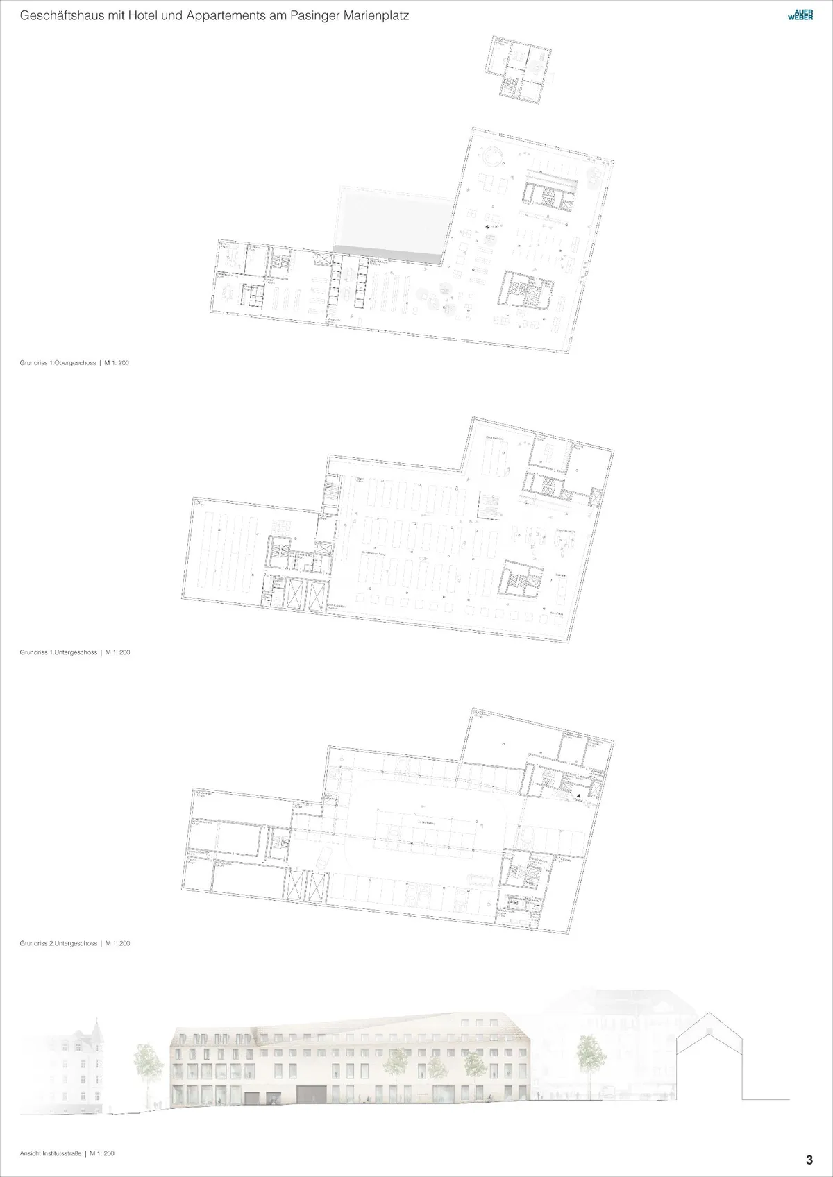
Latz + Partner et Auer Weber Architekten de Munich ont remporté ensemble le concours de réalisation d’un bloc d`immeuble avec hôtel et appartements à la place « Marienplatz » du quartier Pasing de Munich.



